当前位置: 首页 > 通用阀门法兰管件 > 管件系列
不锈钢大小头
产品概况
规格:DN20-150,1″-6″
标准:DIN、SMS、ISO
材质:不锈钢、合金钢、碳钢
应用:啤酒,乳业,饮料,制药
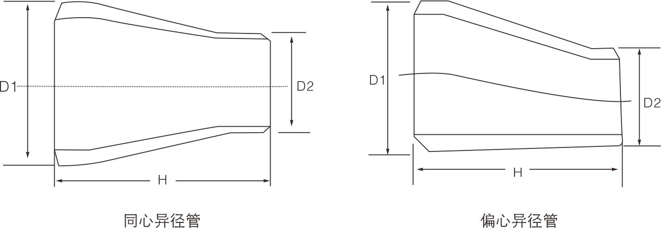
化工管件之一,用于两种不同管径的连接。又分为同心大小头和偏心大小头两种。材质包括不锈钢大小头(304304l316316l),合金钢,碳钢大小头,大小头20号钢Q235、Q345等。
公司简介
企业文化
企业环境
企业荣誉
零泄漏球阀系列
零泄漏蝶阀系列
零泄漏闸阀系列
零泄漏截止阀系列
零泄漏止回阀系列
调节阀系列
开关阀系列
自控阀附件
通用阀系列
衬氟阀门系列
衬氟管道管件系列
蒸汽阀门系列
水利阀系列
法兰系列
管件系列
公司动态
行业资讯
技术知识
苏公网安备 32128302001489号
联系电话: 0523-8733 8088
手机访问